Anasayfa
Kurumsal
Projeler
Uygulamalar
İletişim
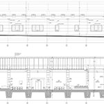
OGE Mimarlık Düğün Salonu 2012