Anasayfa
Kurumsal
Projeler
Uygulamalar
İletişim
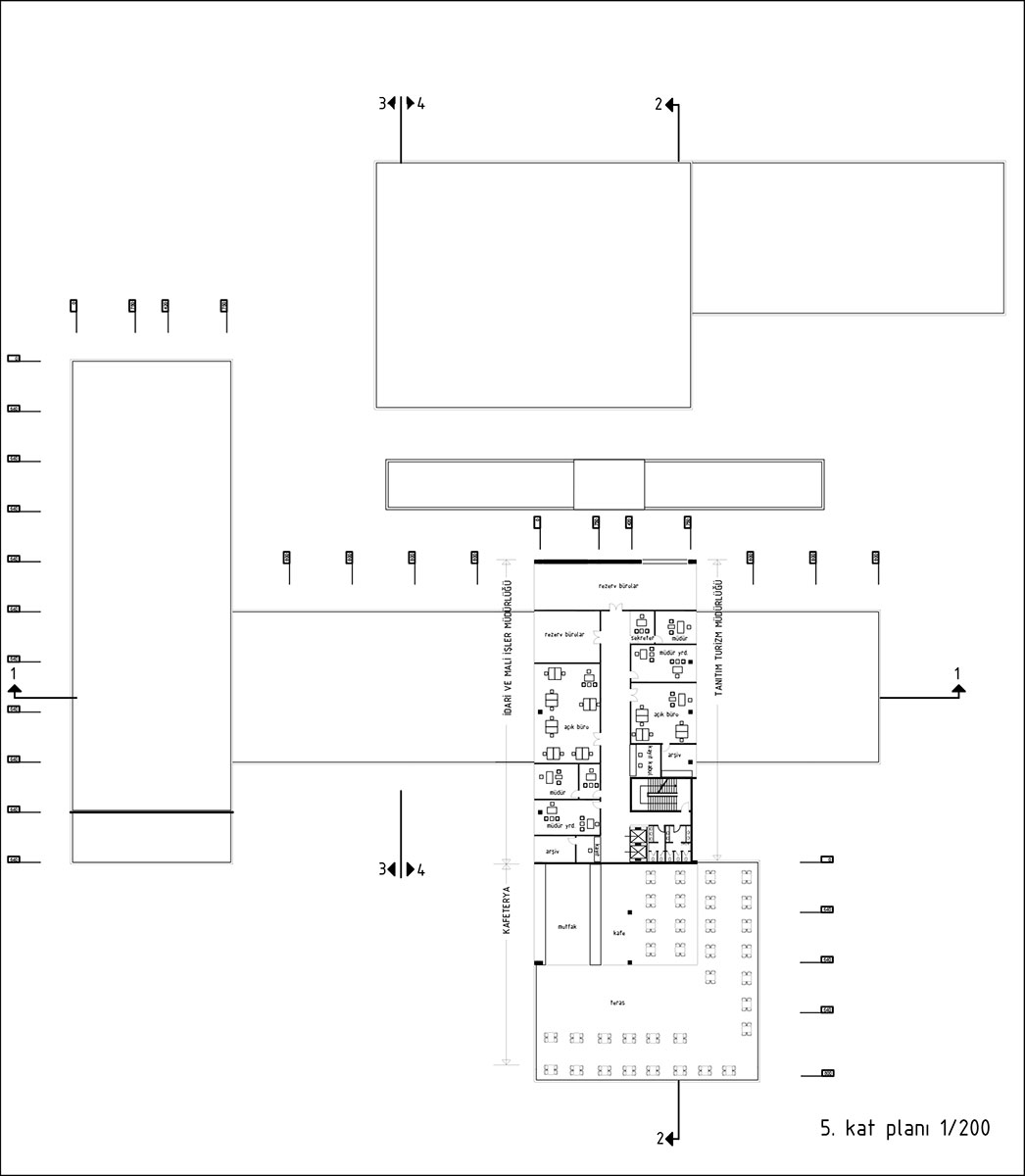
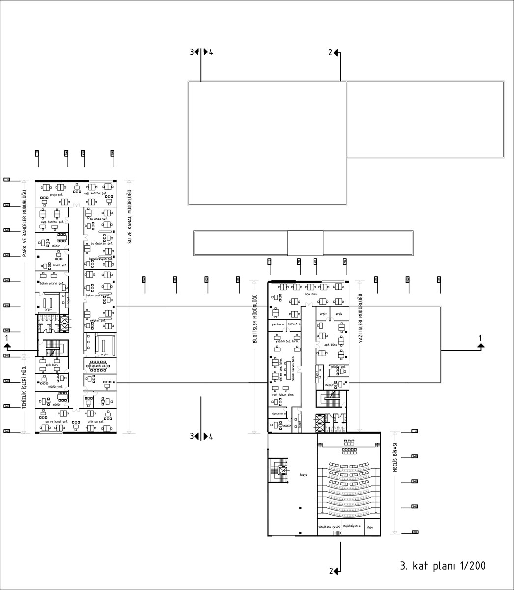
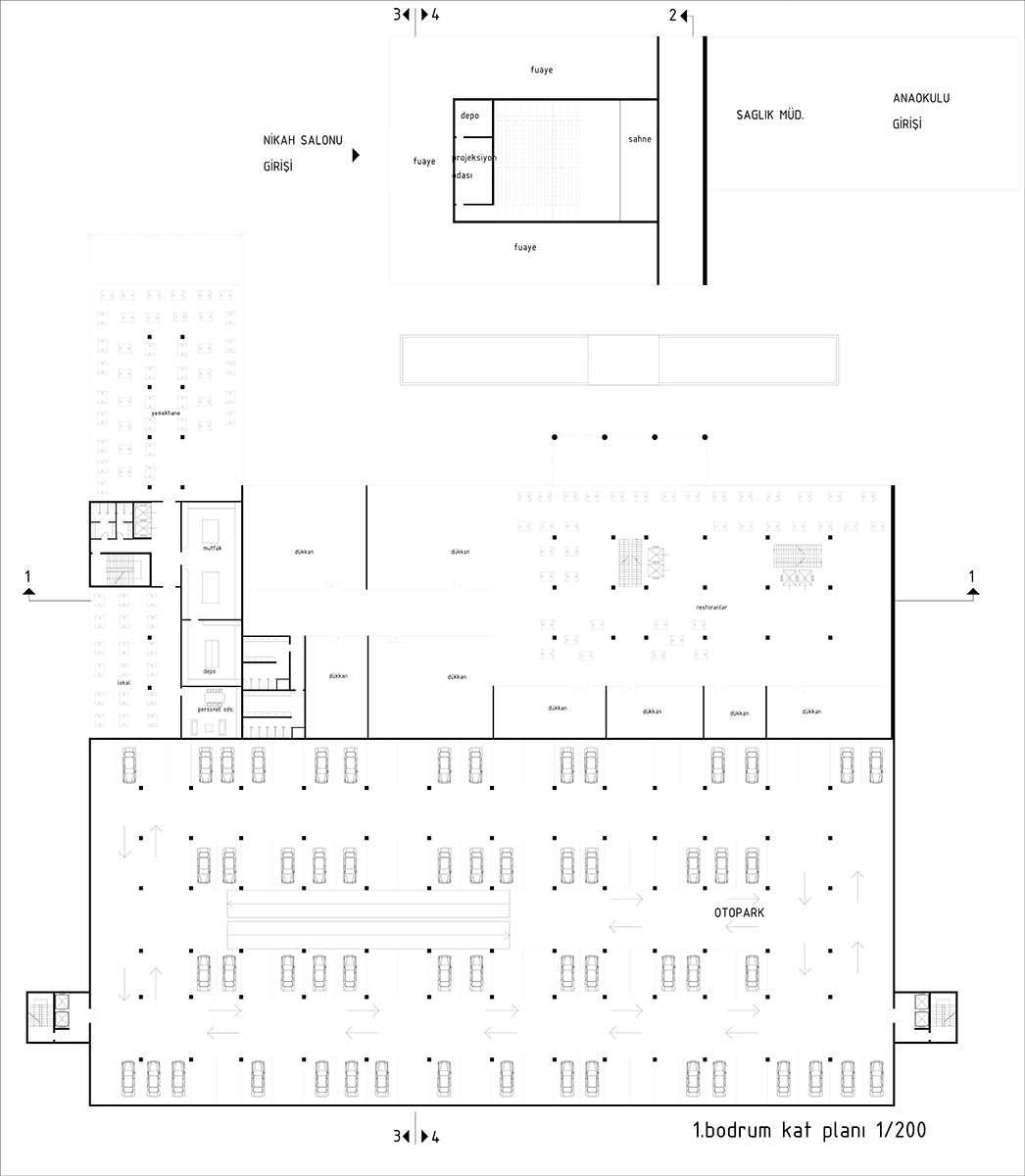
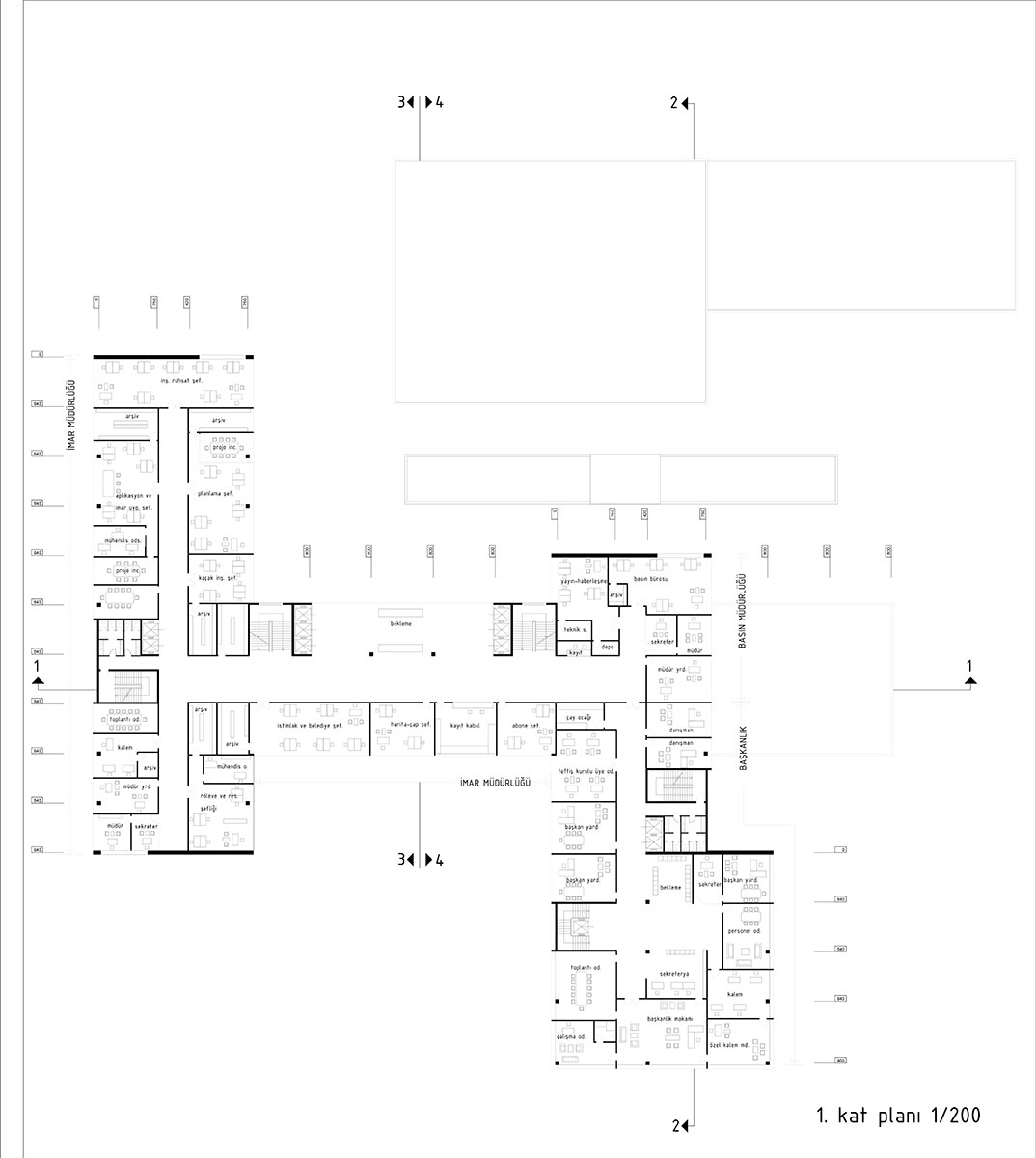
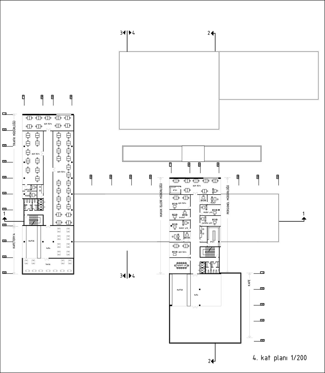
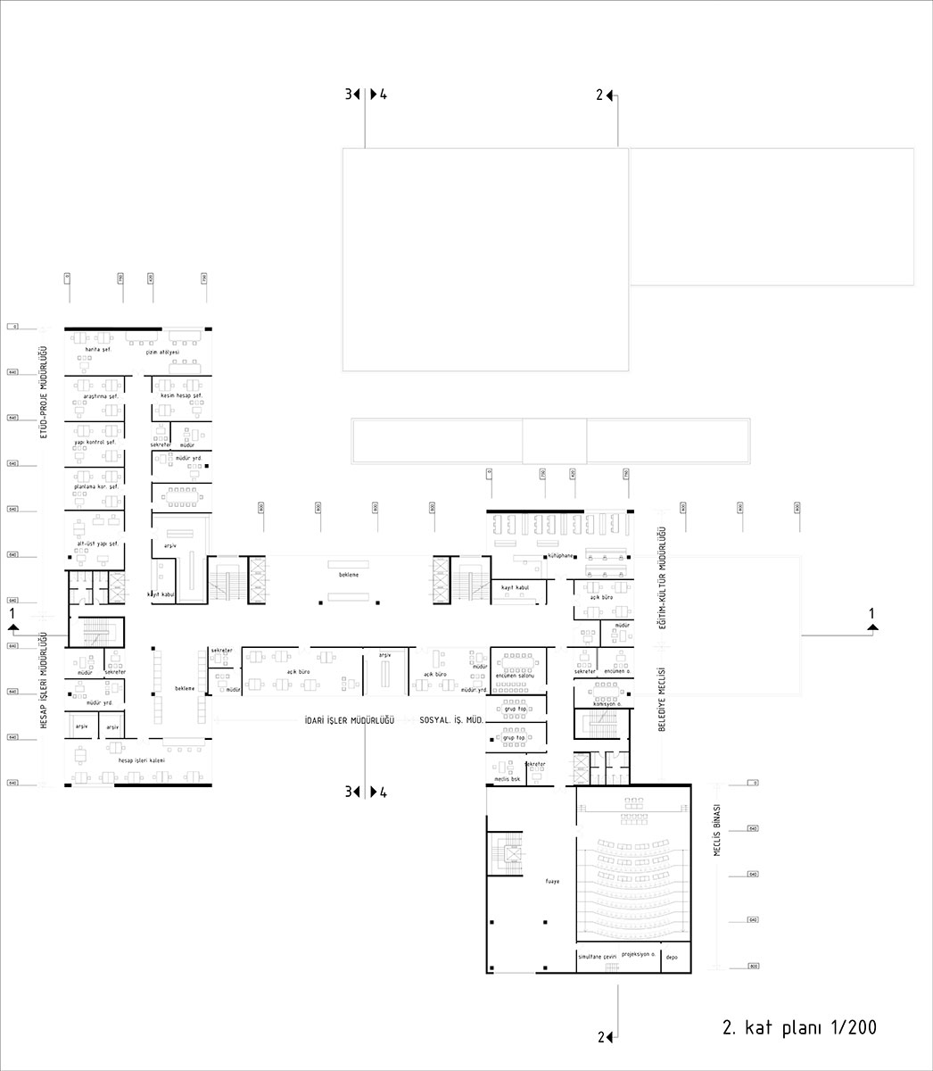
Bakırköy Belediye Binası Fikir Projesi 2011